top of page
8755 Doomkerke
Brandstraat 23A/23B
Deze 2 halfopen woningen zijn gelegen in de Branstraat in Doomkerke, in een rustige en gezellige woonbuurt nabij het centrum van deze landelijke deelgemeente van Ruiselede. De nabijgelegen dorpskernen van Doomkerke zijn Wingene, Aalter, en uiteraard Ruiselede zelf. Wonen in Doomkerke is wonen in een rustig en natuurvol stukje van West-Vlaanderen , met toch het voordeel vlakbij de vlotte verkeersas E40 te wonen. Op 10 minuten van Doomkerke liggen namelijk de opritten Aalter en Beernem.
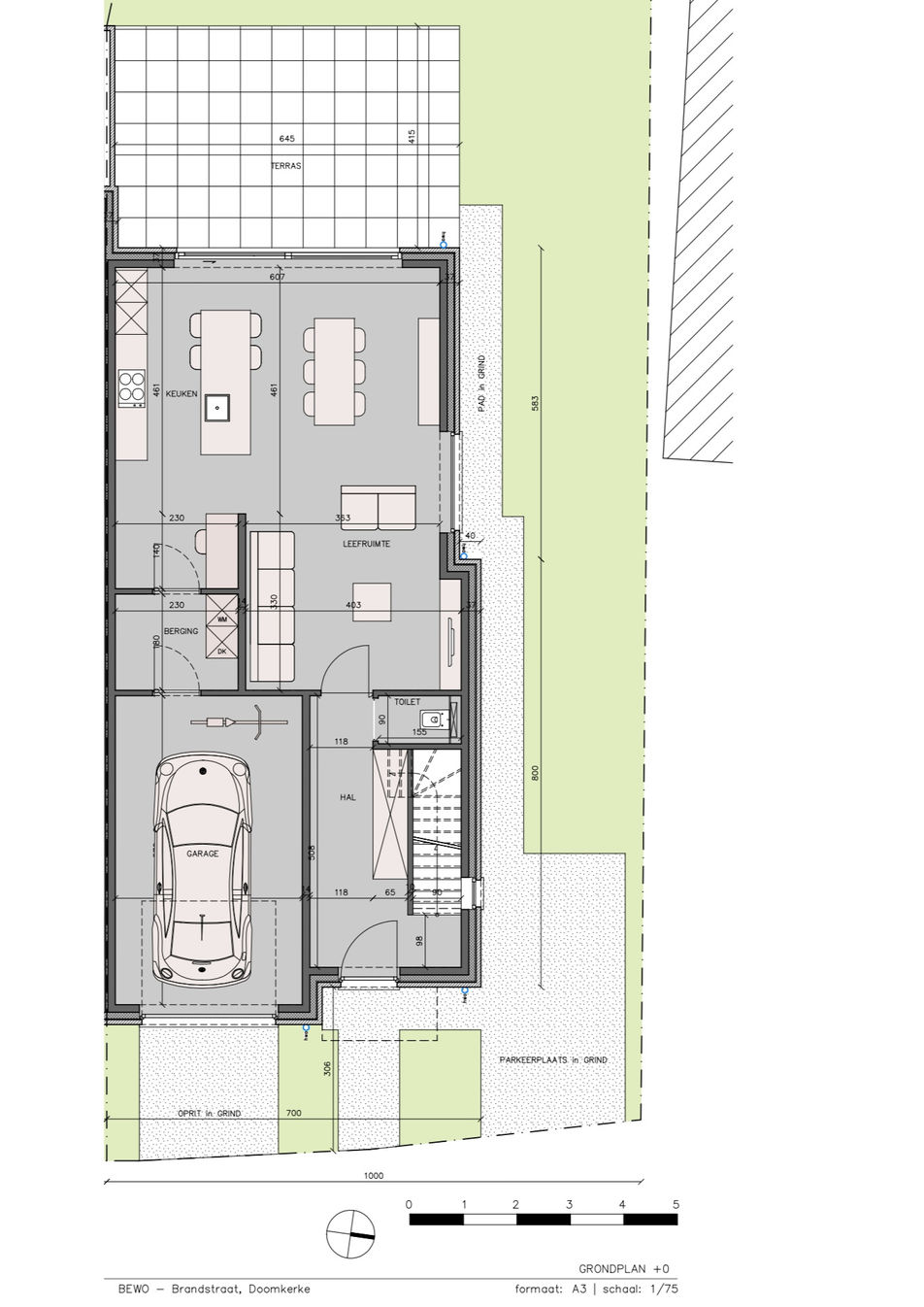
Het project bestaat uit twee halfopen woningen. De bouwstijl is landelijk, de tuinen zijn zuidwest georiënteerd en aangelegd. De woningen bestaan uit een inkomhal met gastentoilet, een lichtrijke leefruimte met open keuken, eet- en zithoek. Het grote schuifraam in de leefruimte zorgt voor veel lichtinval en biedt zicht op de tuin en achterliggende velden. De verdieping omvat een ruime nachthal met een apart toilet, twee slaapkamers en een badkamer met dubbele wastafel, ligbad en douche. Onder het dak bevind zich telkens nog één extra ruime slaapkamer.
Voor u auto's/fietsen is bij lot 1 een carport en fietsenberging voorzien in de prijs. Bij lot 2 is er een inpandige garage en extra oprit voorzien naast de woning.
LOT 1 :
Grond oppervlakte 437 m²
Woning :
-
Bijna-energieneutrale woning (E-peil < 30)
-
Vrijstelling onroerende voorheffing mogelijk
-
Volledig aangelegde tuin met open zicht
-
Carport en fietsenberging
-
Drie slaapkamers
-
Zonnepaneel installatie van 3160 kWh
-
Ventilatiesysteem D
LOT 2 :
Grond oppervlakte 571 m²
Woning :
-
Bijna-energieneutrale woning (E-peil < 30)
-
Vrijstelling onroerende voorheffing mogelijk
-
Volledig aangelegde tuin met open zicht
-
Inpandige garage en staanplaats
-
Zonnepaneel installatie van 3160 kWh
-
Drie slaapkamers
-
Ventilatiesysteem D
bottom of page

























